53 Jubilee Road, Khandallah
Back to Listing ResultsOwners Loss; Your Opportunity - Priced to Sell
Sometimes life is all about the timing… Here's a golden opportunity to secure your very own dress circle Khandallah property. Whether it be living in it for a while, or renovating from the onset, someone's about to hit the jackpot with the lucky buyers having the opportunity to make their mark with added-value improvements along the way.
Enjoying privacy in abundance, oodles of sun, cracking views - all in equal abundance. This super-sized 1970's home is just ready to be snapped up by a family wanting a forever home and is ready to play its part in many happy new memories. Someone's in for a treat and this property won't be missed by the discerning buyer for the potential it holds.
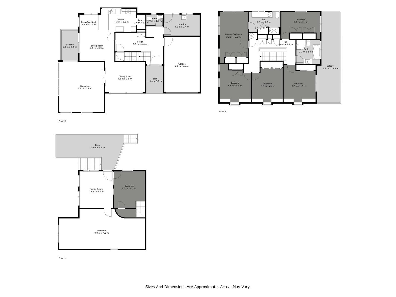
Split over three levels, inside there's five/six sizeable bedrooms, 2.5 bathrooms and four+ living areas. The kitchen is spacious, modern and user-friendly. On the home's lowest level, there's three designated spaces - a study in one section, an office space, games room or home gym area in another, while the basement area is sizeable and offers a very impressive man cave or she shed area.
A separate laundry area and second family bathroom with a third separate WC complete the picture inside. As can be expected with a home this size, there's a plethora of storage spaces dotted around the home. Outside there's several areas including two decks, and further outdoor spaces for playing, gardening, relaxing or hosting in. With the privacy and birdsong on offer here, this is one home that will be an absolute pleasure to come home to.
On top of an internal access garage and off-street parking for 3 plus cars, you'll soon be enjoying all Khandallah offers - great transport links, local shops, supermarkets, Medical Centre, restaurants, library, swimming pool, cafes, great schools, spacious parks and a plethora of walking tracks and leisure activities too.
With an RV of $1,350,000, this five/six bedroom 340m2 Khandallah property with a very attractive guide price from $1,150,000 is definitely worth your consideration for the potential it holds.
Sold by way of Tender. Closing at 2pm on Thursday 4 December 2025. (Vendor Reserves the Right to Sell Prior).
Don't let this fantastic opportunity pass you by. Contact Michael Hinds on 020 4144 3199 or michael@justpaterson.co.nz for more information or to arrange your private viewing.
Positioned for lashings of sun, fantastic birdsong and an equally impressive location resides this private family oasis on a sought-after dress circle address. With an internal-access garage and front door both sheltered from the elements, the perfect entry awaits family and friends.
A commanding yet private space with ample windows that encourage all day sun. This large lounge provides a generous space for comfortable living.
A linking room with the formal lounge on one side and the dining/kitchen area at the other. This is the perfect space to enjoy being curled up on the couch watching your favourite TV show or being consumed by your favourite book.
Currently positioned between kitchen and the lounge areas; this sun-filled space will enjoy many an in-depth family conversation at the dining table while also ensuring it’s a perfect spot for the adults cooking dinner to keep an eye on the kids at the table reading and doing their homework! Access straight on to the back of home deck provides views, fresh air and something different.
Yes yes yes! Welcoming, user-friendly and most definitely the heart of 53 Jubilee Road! Enjoy an expansive kitchen with an impressive breakfast bar and super views too. The chef of the home will revel in whipping up culinary delights and baked goods in this functional kitchen with superior back splashes and their built-in supporting lighting system.
1. This North-facing superior master bedroom enjoys its own spacious ensuite complete with shower, wall-length vanity, storage cupboard, towel rail and WC. Multiple wardrobes are a welcome addition to those requiring good storage areas. But wait, there’s more – open any window here and you’ll be serenaded by birdsong and feeling at one with Mother Nature; what a room!
2. An ample-sized second bedroom, complete with wardrobe. The dual aspect windows ensure a light, bright and spacious room indeed.
3. Bedroom number 3 is also a double bedroom that benefits from multiple wardrobe and high ceilings. With its West-facing opening window this room will enjoy copious amounts of sun. This may just be the room the kids yearn for most; time will tell!
4. Also sizable and located next to the family bathroom. Enjoying a door on to the upper deck, this too will be a popular room with the family.
5. Also located upstairs. There’s an abundance of storage cupboards in this bedroom so will be sought after by those requiring extra space for their belongings.
6. Located on the home’s lower level and currently configured as a bedroom. This space could also be a games room, office/study, gym/yoga area or home business. Great to have options as well as doors leading to the rumpus room under the home, and another to the outdoor area and back garden.
1. Conveniently located on the upper floor providing ease of access for family. Complete with a separate bath and shower, vanity, towel rail and WC.
Strategically located beside the garage and on the home’s entry level. This ample-sized laundry room enjoys a heated towel rail and comes complete with back door access for ease of access to the washing line.
There’s something for everyone here. Native bush area for the kids and pets to play in, prolific birdlife and birdsong, and rather importantly numerous designated deck and outdoor areas each with their respective benefits. BBQ’s, enjoying a coffee, hosting, family time, privacy, fun and games – there’s plenty of outdoor options at 53 Jubilee Road.
On top of a spacious internal access garage, this property benefits from off-street parking for three vehicles.
Under the home resides a huge space that would be the perfect hobby room or rumpus or games area. It’s quite the space.
As can be expected with a home of this size, there’s lots of internal cupboard spaces dotted around, all of which provide a plethora of storage options for even the most enthusiastic of collectors. Under the home, as well as in the garage, laundry and bedroom wardrobes are all viable storage options too.
Cashmere Ave School (Years 1-6), St Benedict’s School (Years 1-8), Raroa Intermediate School (Years 7&8), Onslow College (Years 9-13), Wellington Hills Christian College (Years 1-15); Wellington Girls College (Years 9-13), St Mary’s College (Years 9-13), St Patrick’s College (Years 9-13).
As well as loads of natural light, radiator heating throughout provides effortless warmth around the home. A near new water cylinder provides an abundance of hot water.





























Schools and Zones